九州圏内で事業用店舗・事務所・倉庫・テナント・土地をお探しの方は立地ライズにご相談ください。
お電話でのお問い合わせ 092-292-5681 受付時間:9時〜18時(土日祝除く)
店舗取扱い物件
4747件
Web取扱い物件
163件

物件更新日 12月15日

MENU

新着情報

BLESS久留米(倉庫・事務所)の募集中です!

2025/02/10  

この度、2025年8月・9月に竣工の【(BLESS久留米 】の募集を開始します!

詳細は ⇓ へ

 

 

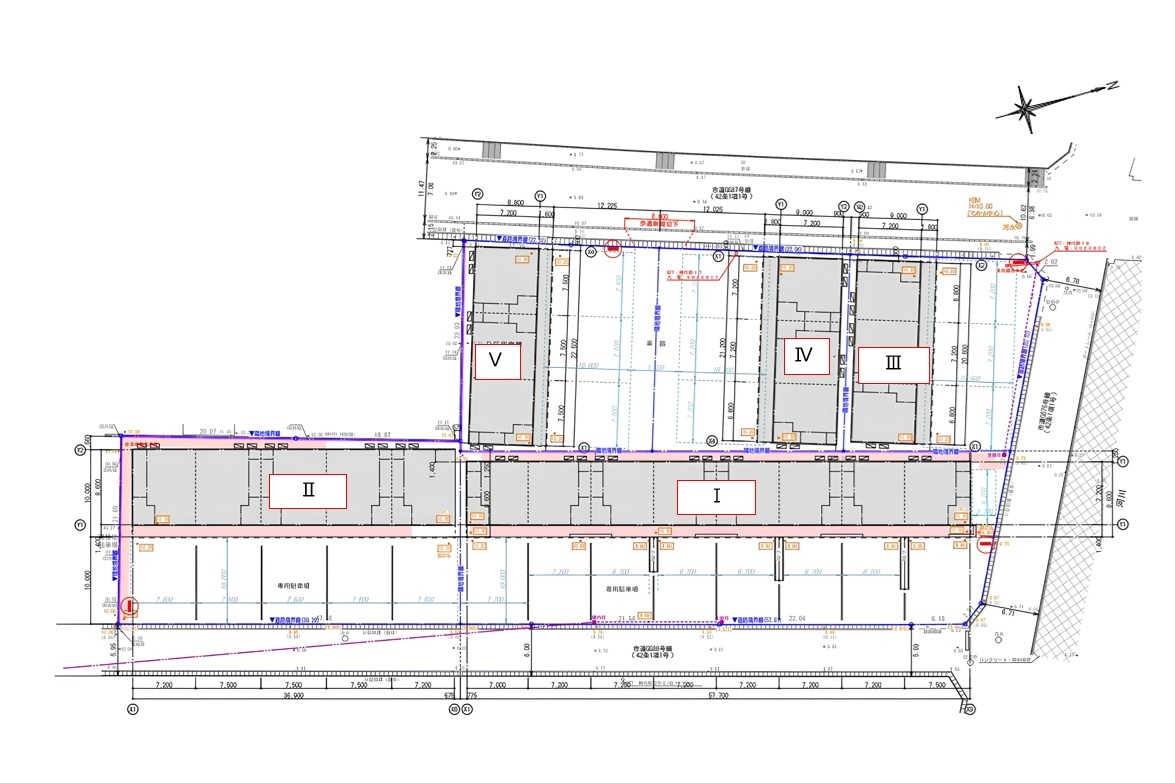
名 称:BLESS久留米Ⅰ~Ⅴ

住 所:福岡県久留米市御井旗崎3丁目5番

構 造:鉄骨造2階建

用 途:1階 倉庫、2階 事務所

築年数:2025年8月・9月

交 通:JR久大本線 御井駅 徒歩15分

    九州自動車道 久留米 3分 1.2km

駐車場:区画前面約6台(駐車場代無料)

設 備:オートロック式玄関、防犯カメラ、モニター付インターホン、トイレ(1階・2階ウォシュレット付)

    2階事務所 OAフロア―、個別空調

 

★☆★☆★☆★☆★☆おすすめポイント★☆★☆★☆★☆★☆

・フリーレント(賃料免除期間)相談可能

・24時間利用可能

・久留米ICから3分

・セキュリティ(オートロックシステム、防犯カメラあり)

・建物前面に専用駐車場があり、荷物の搬入搬出が楽

★☆★☆★☆★☆★☆★☆★☆★☆★☆★☆★☆★☆★☆★☆

 

一棟貸し、2区画賃貸 等 対応しておりますので、ご相談ください。

 

詳細は下記URLへ!

▪BLESS久留米Ⅰ

 B区画 https://www.rrl.co.jp/search/detail/5330

 C区画 https://www.rrl.co.jp/search/detail/5332

 

▪BLESS久留米Ⅱ

 一棟貸 https://www.rrl.co.jp/search/detail/5426

 A区画 https://www.rrl.co.jp/search/detail/5333

 B区画 https://www.rrl.co.jp/search/detail/5334

 C区画 https://www.rrl.co.jp/search/detail/5335

 

▪BLESS久留米Ⅲ

 A区画 https://www.rrl.co.jp/search/detail/5629

 B区画 https://www.rrl.co.jp/search/detail/5630

 C区画 https://www.rrl.co.jp/search/detail/5321

 

▪BLESS久留米Ⅳ

 A区画 https://www.rrl.co.jp/search/detail/5632

 B区画 https://www.rrl.co.jp/search/detail/5322

 

▪BLESS久留米Ⅴ

 A区画 https://www.rrl.co.jp/search/detail/5631

 B区画 https://www.rrl.co.jp/search/detail/5323

 

現地案内も可能となっております。

ご連絡お待ちしております!

 

 

≪ 年末年始休業日について     岡垣町3号線沿い売地の看板を設置いたしました! ≫