
那珂川市松木4丁目 事務所・倉庫
賃料月額(消費税別) 42万円
お問い合わせコード
No-00005333
| 物件用途 | 倉庫・事務所 |
|---|
| 賃料月額(消費税別) | 26.8万円 | ||
|---|---|---|---|
| 敷金 | (4ヶ月) | ||
| その他費用 | 礼金: 1ヶ月分 | ||
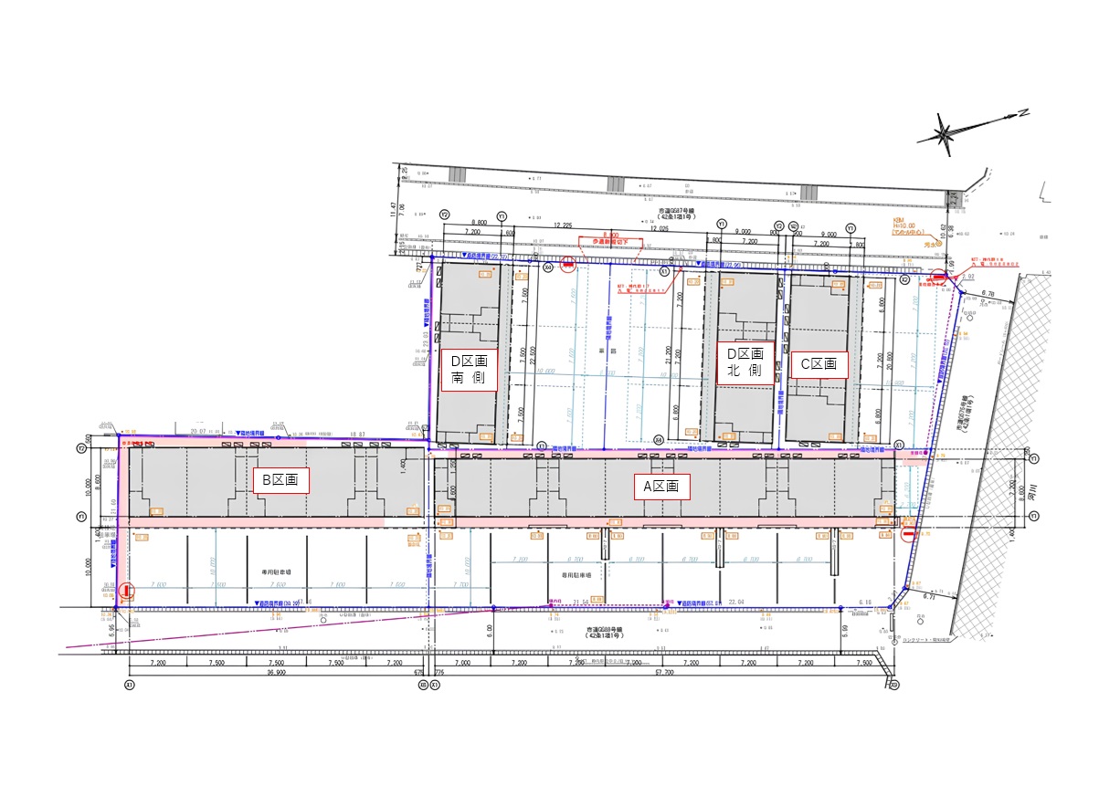
| 所在地 | 福岡県久留米市御井旗崎3丁目5番11号 | ||
|---|---|---|---|
| アクセス | 久大本線御井旗崎駅 徒歩15分 | ||
| 高速IC | 【九州自動車道 久留米IC 3分】 1.20 km | ||
| 敷地面積 | 833.40m² | ||
| 電力 | ― | ||
| 上水 | ― | ||
| 下水 | ― | ||
| 接道 | 幅員:約6m、接道:約36m | ||
| 区域区分 | 市街化区域 | ||
| 用途地域 | 準工業地域 | ||
| 備考 | ※Type-A:1室 ※共益費:なし ※セキュリティ費:18,000円(税別) ※保証会社加入要 ※フリーレント(賃料免除期間)相談可 ★☆★☆★☆おすすめポイント★☆★☆★☆ ・24時間利用可能 ・電動パネルシャッター ・オープンキッチン ・敷金減額しました! 6ヶ月 ⇒ 4ヶ月 |
||
| 構造 | 鉄骨造(S造) | ||
|---|---|---|---|
| 築年数 | 2025年8月 | ||
| 現状 | 募集中 | ||
| 引渡し期間 | 相談 | ||
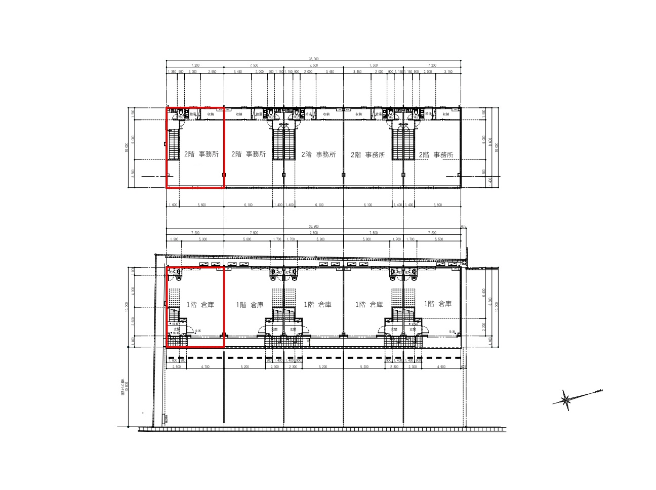
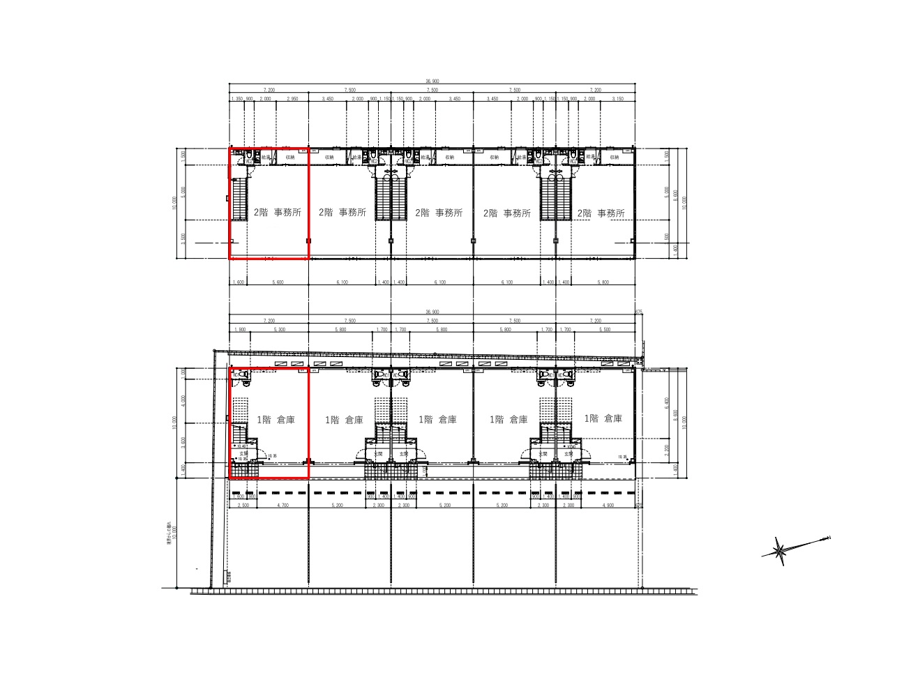
| 階数 | 用途 | 面積(㎡ ) | 面積(坪) |
|---|---|---|---|
| 1F | 倉庫 | 61.92㎡ | 18.73坪 |
| 2F | 事務所 | 72.00㎡ | 21.78坪 |
| 合計 | 133.92㎡ | 40.51坪 | |
| 設備 | オートロック式玄関 モニター付インターホン 防犯カメラ ウォシュレット付トイレ(1・2階) OAフロア(2階) 個別空調(2階) |
|---|
| 駐車台数 | 区画前面 約6台(無料) |
|---|


那珂川市松木4丁目 事務所・倉庫
賃料月額(消費税別) 42万円

ツインスクエア 13号室
賃料月額(消費税別) 33.7万円

三弘エアポートビルⅡ 1・2号室
賃料月額(消費税別) 42.3万円

BLESS久留米Ⅴ 一棟
賃料月額(消費税別) 76.5万円
お電話でのお問い合わせ
092-292-5681
受付時間:9時~17時(土日祝除く)
※営業時間外の場合、
翌営業日のご返信になります