
Storefront 3階
賃料月額(消費税別) 65万円
お問い合わせコード
No-00005617
| 物件用途 | 事務所 |
|---|
| 賃料月額(消費税別) | 35.1万円 | ||
|---|---|---|---|
| 敷金 | (10ヶ月) | ||
| その他費用 | |||
| 所在地 | 福岡県福岡市中央区大名2丁目9番34号 | ||
|---|---|---|---|
| アクセス | 地下鉄空港線天神駅 徒歩4分 | ||
| アクセス | 西鉄天神大牟田線西鉄福岡駅 徒歩11分 | ||
| 高速IC | 【福岡都市高速環状線 天神北IC 7分】 1.70 km | ||
| 敷地面積 | |||
| 電力 | ― | ||
| 上水 | ― | ||
| 下水 | ― | ||
| 接道 | 幅員:約37m、接道:約6m | ||
| 区域区分 | 市街化区域 | ||
| 用途地域 | 商業地域 | ||
| 備考 | ※正面玄関開閉時間 平 日 7:00~21:00 土日祝 8:00~21:00 ※セキュリティカード:入居時3枚無償貸与 追加5,000円/枚 ※サービス系の工事は内装管理費が発生 基本料金20,000円 + 坪数 × 5,000円/坪(税別) ※指定の保証会社を利用する場合、敷金なし |
||
| 構造 | 鉄骨造(S造) | ||
|---|---|---|---|
| 築年数 | 2005年2月 | ||
| 現状 | |||
| 引渡し期間 | 2026年1月中旬以降 | ||
| 階数 | 用途 | 面積(㎡ ) | 面積(坪) |
|---|---|---|---|
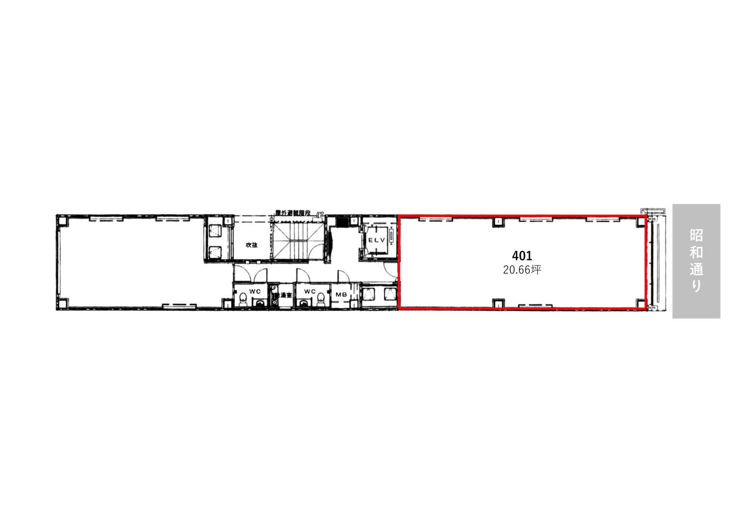
| 4F | 事務所(401) | 68.30㎡ | 20.66坪 |
| 合計 | 68.30㎡ | 20.66坪 | |
| 設備 | OAフロア 個別空調 エレベーター(1基) 機械警備 |
|---|
| 駐車台数 |
|---|


Storefront 3階
賃料月額(消費税別) 65万円

赤坂セントラルビル
賃料月額(消費税別) 応相談

博多駅JSビル
賃料月額(消費税別) 36.8万円

ガーデン博多駅前ビル
賃料月額(消費税別) 88.7万円
お電話でのお問い合わせ
092-292-5681
受付時間:9時~17時(土日祝除く)
※営業時間外の場合、
翌営業日のご返信になります