
中の原メディカルタウン A203号
賃料月額(消費税別) 76万円
お問い合わせコード
No-00005610
| 物件用途 | 店舗 |
|---|
| 賃料月額(消費税別) | 40万円 | ||
|---|---|---|---|
| 敷金 | |||
| その他費用 | |||
| 所在地 | 福岡県福岡市早良区西新4丁目7番25号 | ||
|---|---|---|---|
| アクセス | 地下鉄空港線西新駅 徒歩2分 | ||
| 高速IC | 【福岡都市高速環状線 百道IC 8分】 1.70 km | ||
| 敷地面積 | |||
| 電力 | ― | ||
| 上水 | ― | ||
| 下水 | ― | ||
| 接道 | 幅員:約3m、接道:約6m | ||
| 区域区分 | 市街化区域 | ||
| 用途地域 | 商業地域 | ||
| 備考 | ※重飲食相談可 ※敷金相談(業種による) |
||
| 構造 | 木造 | ||
|---|---|---|---|
| 築年数 | 2025年3月 | ||
| 現状 | |||
| 引渡し期間 | 相談 | ||
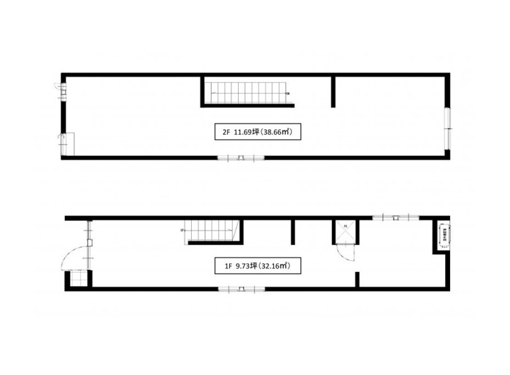
| 階数 | 用途 | 面積(㎡ ) | 面積(坪) |
|---|---|---|---|
| 1F | 店舗 | 35.21㎡ | 10.65坪 |
| 2F | 店舗 | 44.26㎡ | 13.39坪 |
| 合計 | 79.47㎡ | 24.04坪 | |
| 設備 |
|---|
| 駐車台数 | なし |
|---|


中の原メディカルタウン A203号
賃料月額(消費税別) 76万円

中の原メディカルタウン A103号
賃料月額(消費税別) 63万円

中の原メディカルタウン A101号
賃料月額(消費税別) 18万円

八幡西区浅川日の峯2丁目 複合店舗
賃料月額(消費税別) 70万円
お電話でのお問い合わせ
092-292-5681
受付時間:9時~17時(土日祝除く)
※営業時間外の場合、
翌営業日のご返信になります