
那珂川市松木4丁目 事務所・倉庫
賃料月額(消費税別) 42万円
お問い合わせコード
No-00005587
| 物件用途 | 倉庫・事務所 |
|---|
| 賃料月額(消費税別) | 251.7万円 | ||
|---|---|---|---|
| 敷金 | (10ヶ月) | ||
| その他費用 | 共益費: 419,580円(税別) | ||
| 所在地 | 福岡県福岡市博多区沖浜町11番10号 | ||
|---|---|---|---|
| アクセス | 地下鉄箱崎線呉服町駅 徒歩21分 | ||
| アクセス | 西鉄バス博多港国際ターミナル 停 徒歩2分 | ||
| 高速IC | 【福岡都市高速環状線 呉服町IC 6分】 1.50 km | ||
| 敷地面積 | |||
| 電力 | ― | ||
| 上水 | ― | ||
| 下水 | ― | ||
| 接道 | 幅員:約30m、接道:約50m | ||
| 区域区分 | 市街化区域 | ||
| 用途地域 | 準工業地域 | ||
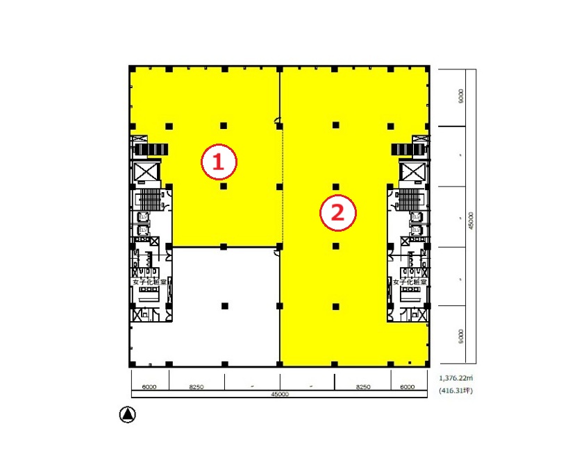
| 備考 | ※分割時の経済条件 ①区画 賃料:1,032,135円、共益費:158,790円 合計:1,190,925円 ②区画 賃料:1,564,740円、共益費:260,790円 合計:1,825,530円 ※床荷重(防塵塗装):3.3t / 坪 ※天井高:3.5m ※駐車場 ・平置駐車場1台:11,000円 / 月 ・立体駐車場1台:12,000円 / 月 ※博多港国際ターミナル(徒歩2分)にレンタルサイクルあり(チャリチャリ) ★☆★☆★☆★☆★☆★☆★☆★☆★☆★☆★☆★☆★☆★☆★☆★☆★☆ ■荷捌場あり ・トラックバース 7台接車 ・ドッグレベラー 4基 ・テーブルリフター 1基 ・垂直搬送機 2基 ・貨物用エレベータ 2基(3t 幅:2.5m、奥行:3.4m、高:2.5m) ■セキュリティ ・フロアカット警備 ・防犯カメラ26台設置 |
||
| 構造 | 鉄骨造(S造) | ||
|---|---|---|---|
| 築年数 | 1994年10月 | ||
| 現状 | 募集中 | ||
| 引渡し期間 | 2026年7月以降 | ||
| 階数 | 用途 | 面積(㎡ ) | 面積(坪) |
|---|---|---|---|
| 4F | ①事務所・倉庫 | 524.93㎡ | 158.79坪 |
| 4F | ②事務所・倉庫 | 862.12㎡ | 260.79坪 |
| 合計 | 1387.05㎡ | 419.58坪 | |
| 設備 | 照明(LED) 個別空調 セキュリティー トイレ:パウダールーム設置(女性用) 給湯室:電気温水器完備 |
|---|
| 駐車台数 | あり(備考欄記載) |
|---|


那珂川市松木4丁目 事務所・倉庫
賃料月額(消費税別) 42万円

ツインスクエア 13号室
賃料月額(消費税別) 33.7万円

三弘エアポートビルⅡ 1・2号室
賃料月額(消費税別) 42.3万円

BLESS久留米Ⅴ 一棟
賃料月額(消費税別) 76.5万円
お電話でのお問い合わせ
092-292-5681
受付時間:9時~17時(土日祝除く)
※営業時間外の場合、
翌営業日のご返信になります