
BLESS久留米Ⅳ Type-A
賃料月額(消費税別) 24.7万円
お問い合わせコード
No-00005499
| 物件用途 | 倉庫・事務所 |
|---|
| 賃料月額(消費税別) | 280万円 | ||
|---|---|---|---|
| 敷金 | (6ヶ月) | ||
| その他費用 | 礼金: 1ヶ月 | ||
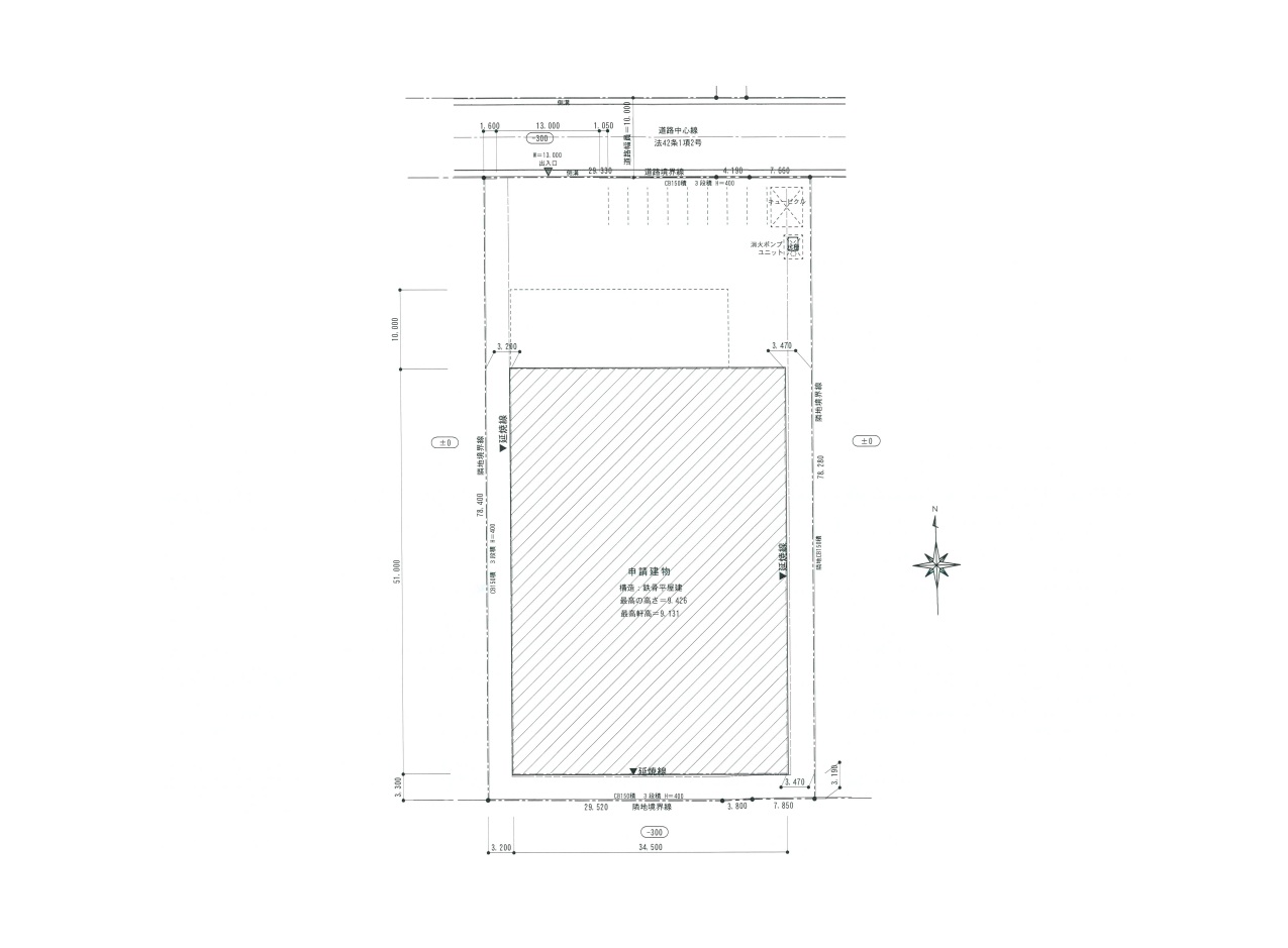
| 所在地 | 鹿児島県霧島市国分下井3219番2号 | ||
|---|---|---|---|
| アクセス | 鹿児島交通西下井 停 徒歩4分 | ||
| 高速IC | 【東九州自動車道 国分IC 4分】 1.70 km | ||
| 敷地面積 | 3239.67m² | ||
| 電力 | ― | ||
| 上水 | ― | ||
| 下水 | ― | ||
| 接道 | 幅員:約10m、接道:約40m | ||
| 区域区分 | ― | ||
| 用途地域 | 無指定 | ||
| 備考 | ※大型電動シャッター(W4900 × H4965) ※法規制:国分都市計画区域 ★☆★☆★☆おすすめポイント★☆★☆★☆ ・東九州自動車道 霧島市国分ICより5分 ・鹿児島空港まで約20分 |
||
| 構造 | |||
|---|---|---|---|
| 築年数 | 2025年11月末竣工予定 | ||
| 現状 | |||
| 引渡し期間 | 相談 | ||
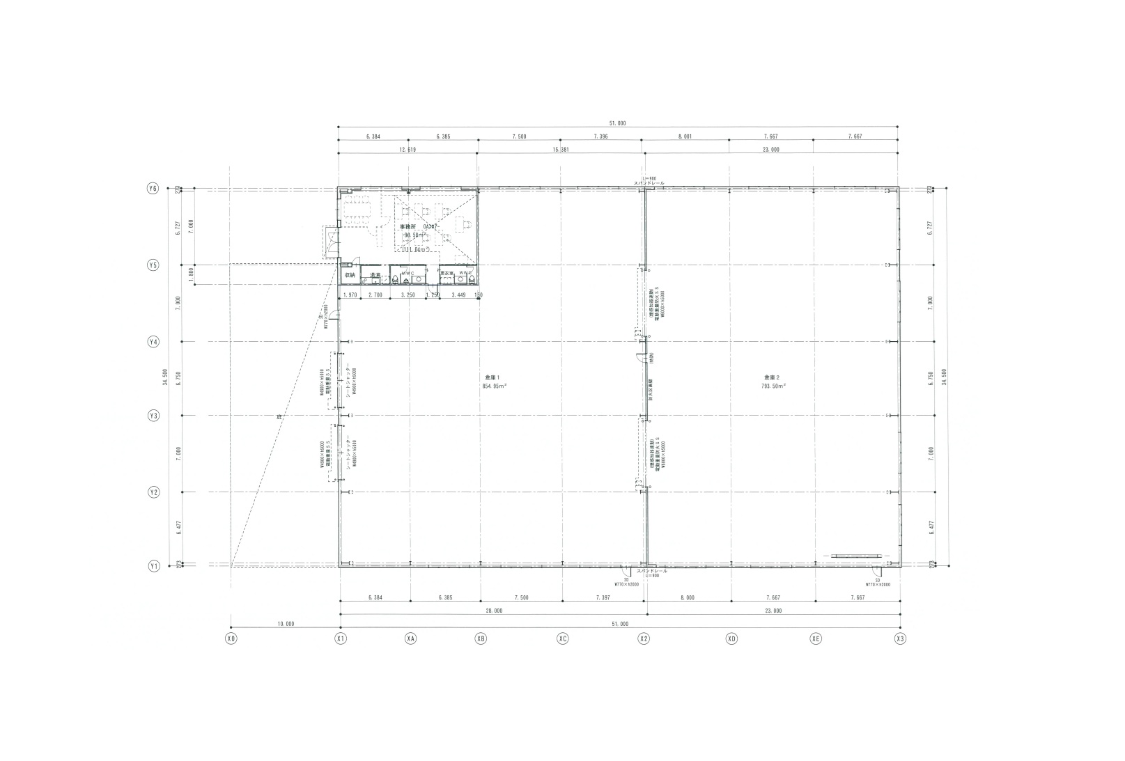
| 階数 | 用途 | 面積(㎡ ) | 面積(坪) |
|---|---|---|---|
| 1F | 倉庫 | 1639.01㎡ | 495.80坪 |
| 1F | 事務所 | 99.83㎡ | 30.20坪 |
| 合計 | 1738.84㎡ | 526.00坪 | |
| 設備 | 空調 電動シャッター(2基) |
|---|
| 駐車台数 |
|---|


BLESS久留米Ⅳ Type-A
賃料月額(消費税別) 24.7万円

BLESS久留米Ⅴ Type-A
賃料月額(消費税別) 25.5万円

BLESS久留米Ⅲ Type-B
賃料月額(消費税別) 24.7万円

BLESS久留米Ⅲ Type-A
賃料月額(消費税別) 23.4万円
お電話でのお問い合わせ
092-292-5681
受付時間:9時~17時(土日祝除く)
※営業時間外の場合、
翌営業日のご返信になります